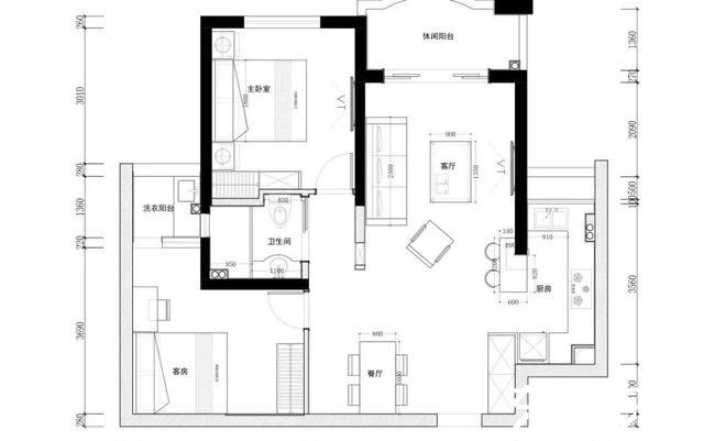
小戶型房子面積小怎么裝好看呢?今天東家樂來給大家分享一個79平米的小兩房裝修效過圖介紹,整體簡約舒適看起來特別舒服,還是第一次看到這么舒服的小兩房,相信大家也會跟小編[...]
小戶型房子面積小怎么裝好看呢?今天東家樂來給大家分享一個79平米的小兩房裝修效過圖介紹,整體簡約舒適看起來特別舒服,還是第一次看到這么舒服的小兩房,相信大家也會跟小編一樣覺得不錯,同戶型的朋友趕緊學起來吧!
全屋地面鋪設木地板,客廳帶個陽臺,用玻璃門和紗簾做分隔,整體的采光非常好。
客廳的沙發、躺椅還有層板顏色統一,藍色背景墻與其搭配,灰色窗簾增加了神秘感。沙發上方掛畫+射燈,提升了客廳的氛圍。連接背景墻的層板形成了一個輕隔斷,降低了大面積墻面帶來的壓抑感。
視線轉移到餐廳處,餐桌椅是典型的北歐色系,自然簡約。幾何曲線為射燈增加了設計感,也成了小小的亮點。
入門就將鞋柜和儲物柜結合,收納空間足夠。這里內嵌的黃色部分與客廳的掛畫有所呼應,十分協調。
客廳與廚房之間,人性化設計了一個美觀又實用的小吧臺,進一步增強了空間的實用性。
由于朋友在家下廚的機會不多,利用白色提亮,選擇開放式吊柜,打造一個顏值非常高的空間。
主臥延續主色調,到頂原木衣柜和原木質感定制床,與淺藍色搭配,營造一個靜謐的睡眠氛圍。米白色床品和與客廳同色系的灰色窗簾,明暗有致。
次臥就更加簡約了,但還是保持整體的色調。
床尾處衣柜+展示柜+書柜三柜一體的設計,大大增強了空間的功能性。
衛浴空間比較小,但設計了超大一體盆,能夠同時滿足兩個人的洗漱需求,節省出門時間,實用性滿分。同時,透明的玻璃門隔出淋浴區,干濕分離做的不錯。
點評:這套79平米小兩房的裝修效果圖不錯吧?總給人一種麻雀雖小,五臟俱全的感覺,而且還給人特別舒服,根本沒有讓人感覺到室內空間小。如果你的房子戶型差不多,你也喜歡這樣的風格,不如就照著這樣裝吧!





